Українська / Español / Русский

Julia Vakulenko - Broker -

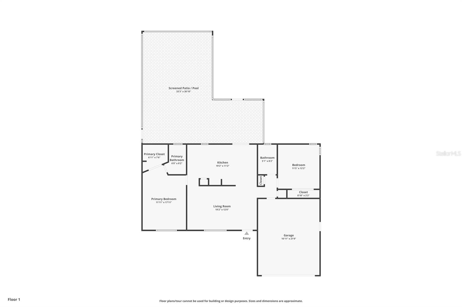
Twilight Enhanced Front Exterior Front Entrance Living (Virtually Staged) Living Living/Kitchen/Dining Kitchen Kitchen Primary Bedroom (Virtually Staged) Primary Bedroom Primary Bedroom Primary Bedroom Primary Bathroom Primary Closet Bedroom 2 (Virtually Staged) Bedroom 2 Bathroom 2 Laundry Area Rear Porch and Pool Rear Porch and Pool Pool Area Pool Area Pool Area Side Exterior Rear Exterior Floorplan Front Exterior Front Exterior Front Exterior Living Kitchen Kitchen Bedroom 2
Loading map ...
Loading map ...

5364 DELTONA BLVD, SPRING HILL, 34606



Property highlights

  • MLS#: W7884380
  • 10,003.00 lot size Sq.Ft.
  • Year built: 1987
  • Parking spaces: 2
  • Pool: Private pool

Property Overview

One or more photo(s) has been virtually staged. One or more photo(s) has been virtually staged. This charming home is nestled among thick mature trees and offers 2-bedrooms, 2-bathrooms, 2-car garage, pool, extra-wide driveway and is set on a 0.23-acre homesite designed for comfortable, easy living. A covered walkway will lead you inside to the living room which feels open and inviting, filled with natural light from the front window and complemented by vaulted ceilings and a seamless blend of tile at the entry and luxury vinyl flooring.The kitchen offers both style and functionality, featuring tile floors, granite countertops, a decorative backsplash, dark wood cabinetry, white appliances and a dual sink beneath a window overlooking the patio. A nearby closet adds convenient storage, while the adjacent dining area provides a comfortable space for daily meals and gatherings. Sliding glass doors connect the dining area directly to the patio and pool, creating a natural flow between indoor and outdoor living. The primary bedroom serves as a relaxing retreat with luxury vinyl flooring, views of the front yard, a spacious walk-in closet, and an updated en-suite bathroom with a stone-topped vanity with cabinet storage and step-in shower with marble-like tile and window for natural light. Bedroom 2 is thoughtfully positioned on the opposite side of the home, offering a built-in closet, luxury vinyl flooring, and corner windows that bring in soft natural light. The nearby second bathroom includes a stone-finished vanity with cabinet storage, a tub-shower combination, and a window. Toward the rear of the home, the oversized porch and connected pool stands out as a versatile space, fully screened to allow fresh air while providing a comfortable setting to unwind and has a lovely view of trees that provide shaded areas in the rear yard. This private outdoor area is ideal for relaxing afternoons and quiet evenings at home. Located in Spring Hill, the home is a short drive from Weeki Wachee Springs State Park, where crystal-clear waters invite kayaking, paddleboarding, and swimming alongside the park’s iconic live mermaid shows; Pine Island Park, offering a sandy shoreline and sweeping Gulf views perfect for watching unforgettable sunsets; and the Suncoast Trail, a scenic multi-use pathway ideal for biking, jogging, and enjoying Florida’s natural beauty year-round, creating a lifestyle that blends relaxation, recreation, and everyday convenience.

Driving directions : From Deltona Blvd & Spring Hill Dr, head S on Deltona Blvd, continue straight, and the property will be on the R side.

Property Features

Rooms Dimension Description
Kitchen 19.2x11.2 First level , Tile , Double Vanity , Granite Counters , Stone Counters
Living Room 19.2x12 First level , Luxury Vinyl,Tile
Primary Bedroom 11.11x17.11 First level , Luxury Vinyl , Ceiling Fan(s) , En Suite Bathroom

Interior Features

  • Ceiling Fans(s)
  • High Ceilings
  • Primary Bedroom Main Floor
  • Stone Counters
  • Vaulted Ceiling(s)
  • Walk-In Closet(s)

Appliances

  • Convection Oven
  • Dryer
  • Refrigerator
  • Washer

Heating

  • Central

Laundry features

  • Electric Dryer Hookup
  • In Garage
  • Washer Hookup

Air Conditioning

  • Central Air

Floor Covering

  • Luxury Vinyl
  • Tile

Utilities

  • BB/HS Internet Available
  • Cable Available
  • Electricity Available
  • Phone Available
  • Water Available

Exterior features

  • Sidewalk

Pool features

  • In Ground
  • Screen Enclosure

Parking features

  • Garage Door Opener
  • Ground Level
  • Off Street

Patio and porch features

  • Rear Porch
  • Screened

Pets restrictions

  • Buyer/Buyers Agent to verify any pet restrictions

Architectural Style

  • Florida

Community Features

  • Street Lights

Construction Materials

  • Block
  • Stucco

Road Surface Type

  • Paved

Roof

  • Shingle

Foundation

  • Concrete Perimeter

Vegetation

  • Trees/Landscaped

Lot Features

  • Cleared
  • Gentle Sloping
  • Sloped
  • Paved

School Information


Listing information courtesy of RE/MAX MARKETING SPECIALISTS

All listing information is deemed reliable but not guaranteed and should be independently verified through personal inspection by appropriate professionals. Listings displayed on this website may be subject to prior sale or removal from sale; availability of any listing should always be independently verified.
Listing information is provided for consumer personal, non-commercial use, solely to identify potential properties for potential purchase; all other use is strictly prohibited and may violate relevant federal and state law.
Listing data comes from My Florida Regional MLS.