Українська / Español / Русский

Julia Vakulenko - Broker -

TB8493434 TB8493434 TB8493434 TB8493434 TB8493434 TB8493434 TB8493434 TB8493434 TB8493434 TB8493434 TB8493434 TB8493434 TB8493434 TB8493434 TB8493434 TB8493434 TB8493434 TB8493434 TB8493434 TB8493434 TB8493434 TB8493434 TB8493434 TB8493434 TB8493434 TB8493434 TB8493434 TB8493434 TB8493434 TB8493434 TB8493434 TB8493434 TB8493434 TB8493434 TB8493434
Loading map ...
Loading map ...

2107 DOLPHIN BLVD S, ST PETERSBURG, 33707



Property highlights

  • MLS#: TB8493434
  • 7,976.00 lot size Sq.Ft.
  • Year built: 1960
  • Parking spaces: 2

Property Overview

One or more photo(s) has been virtually staged. Completely remodeled - Move in ready home located in the popular Pasadena Golf Club Estates! This 3 bedroom (+ office / den), 2 bathroom, 2 car garage home is located just a short drive away to the both the beach and Downtown St. Petersburg! Many updates including:
new AC (2026), brand new kitchen and kitchen appliances (2025 / 2026), fresh paint, new trim and doors throughout the home (2025 / 2026), polished terrazzo (2025), hurricane windows and sliders (2022), fence (2022), new shutters in den / office (2022), new screen on porch (2026). This home also features natural gas stove top and tankless hot water heater! Terrific neighborhood located in close proximity to Pasadena Yacht and Country Club. About 1.5 miles of many great restaurants and 3 grocery stores! Roughly 3 miles to downtown Gulfport! Schedule your private tour of this home today!

Driving directions : Turn right onto Robin Rd S, right onto Mockingbird Way S, left onto Dolphin Blvd S, left onto Pompano PIS, right onto Dolphin Blvd S

Property Features

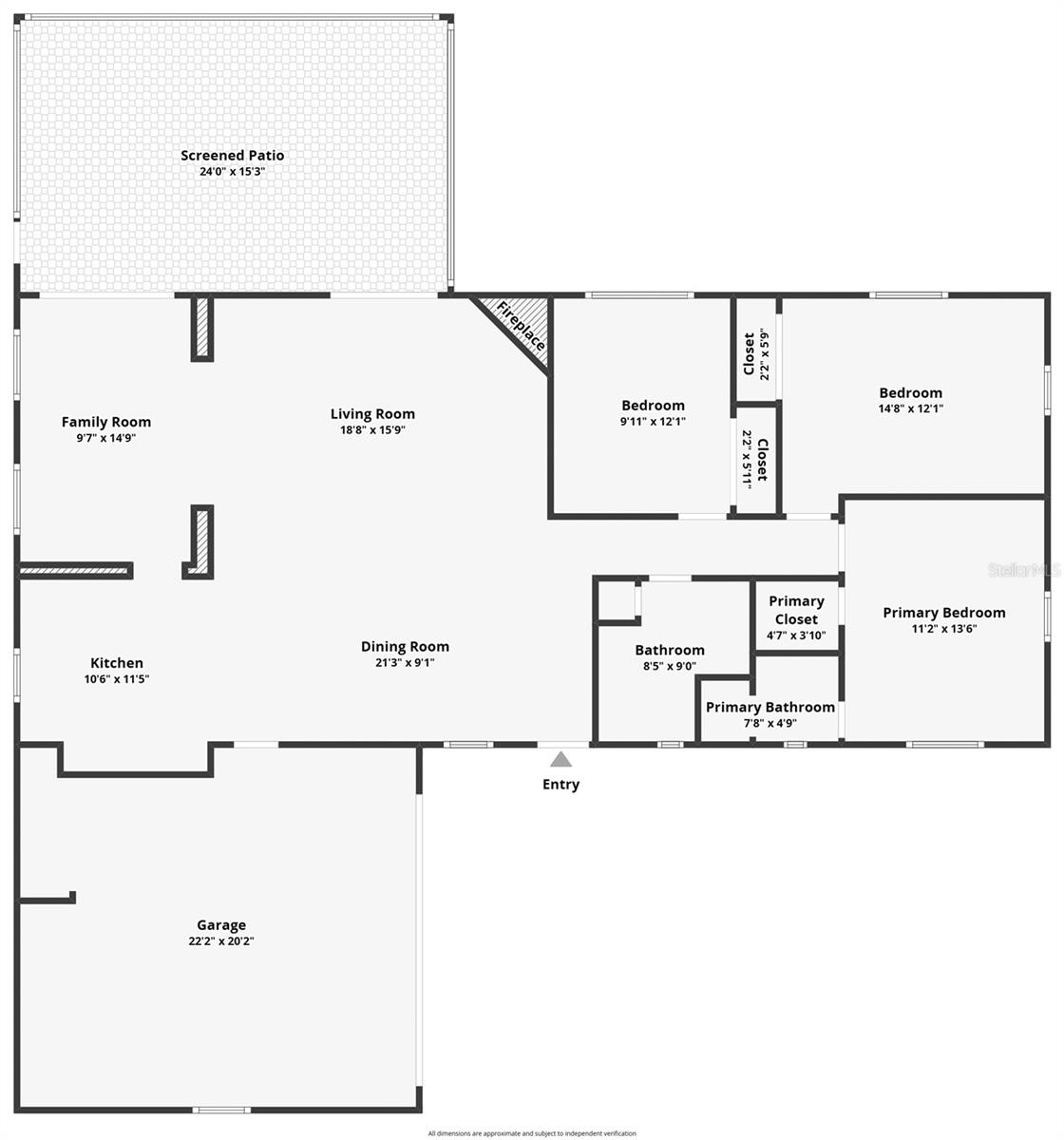
Rooms Dimension Description
Living Room 18.8x15.9 First level , Terrazzo
Dining Room 21.3x9.1 First level , Terrazzo
Family Room 9.7x14.9 First level , Tile
Primary Bedroom 11.2x13.6 First level , Terrazzo
Bedroom 2 14.8x12.1 First level , Terrazzo
Bedroom 3 9.11x12.1 First level , Terrazzo
Kitchen 10.6x11.5 First level , Terrazzo

Interior Features

  • Eat-in Kitchen
  • High Ceilings
  • Open Floorplan

Appliances

  • Microwave
  • Range
  • Refrigerator

Heating

  • Central

Laundry features

  • In Garage

Air Conditioning

  • Central Air

Fireplace

  • Wood Burning

Floor Covering

  • Terrazzo

Utilities

  • Cable Connected
  • Electricity Connected
  • Natural Gas Connected
  • Other
  • Water Connected

Exterior features

  • Other
  • Private Mailbox
  • Storage

Parking features

  • Circular Driveway
  • Oversized

Patio and porch features

  • Rear Porch
  • Screened

Architectural Style

  • Ranch

Construction Materials

  • Block

Road Surface Type

  • Paved

Roof

  • Shingle

Foundation

  • Slab

Lot Features

  • Flood Insurance Required
  • FloodZone
  • In County
  • Near Golf Course
  • Unincorporated

Listing information courtesy of COMPASS FLORIDA LLC

All listing information is deemed reliable but not guaranteed and should be independently verified through personal inspection by appropriate professionals. Listings displayed on this website may be subject to prior sale or removal from sale; availability of any listing should always be independently verified.
Listing information is provided for consumer personal, non-commercial use, solely to identify potential properties for potential purchase; all other use is strictly prohibited and may violate relevant federal and state law.
Listing data comes from My Florida Regional MLS.