Українська / Español / Русский

Julia Vakulenko - Broker -

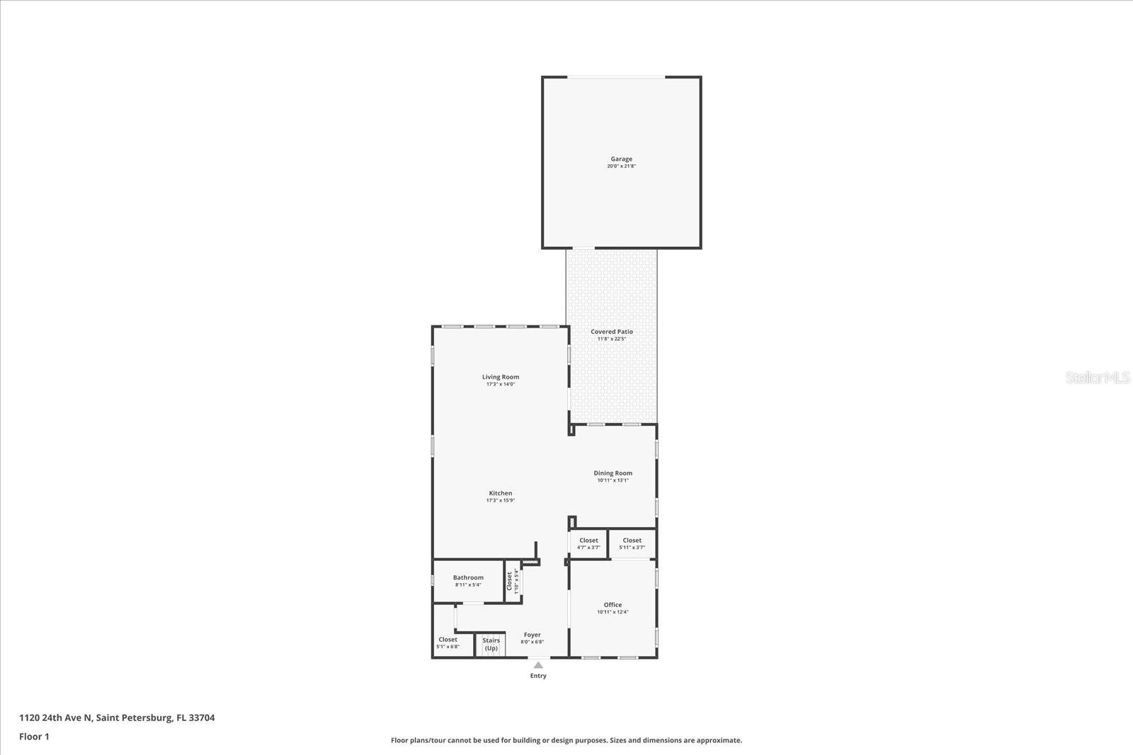
Woodlawn newer constrction home TB8473003 TB8473003 Entry Downstairs Bedroom/Office Open floor plan.  Kitchen great room Downstairs bedroom/offfice TB8473003 TB8473003 TB8473003 Great Room Dining Room Dining Room Stairwell Upstairs Landing Upstairs Hall Bath with double vanity Upstairs laundry Second Bedroom Third Bedroom TB8473003 Master Bedroom walk in closet Master Bedroom with coffered ceiling Master Bath Master bath shower Master bath with separage claw foot tub and shower, double vanity TB8473003 Downstairs full bath Covered rear porch attached to garage TB8473003 TB8473003 Room for a pool Two Car garage Alley access Close to Crescent Lake Park Crescent Lake Park Just a few minutes from St Pete Pier Downtown St Pete just minutes away from Woodlawn neighborhood TB8473003 Floor Plan Upstairs floor plan Downstairs floor plan
Loading map ...
Loading map ...

1120 24TH AVE N, ST PETERSBURG, 33704

  • $1,200,000
  • 4 Beds, 3 Baths , 2,496 Sq.Ft
  • County: Pinellas
  • Subdivision: WOODLAWN


Property highlights

  • MLS#: TB8473003
  • 6,499.00 lot size Sq.Ft.
  • Year built: 2023
  • Parking spaces: 2

Property Overview

Beautiful 2023 Green Street Homes build in the sought-after Woodlawn neighborhood, just minutes from Crescent Lake Park and only 10 minutes to downtown St. Petersburg. This Energy Star–rated home features block construction on the ground level and has been barely lived in, offering the comfort and efficiency of near-new construction. The upgraded Trane variable Speed Heat Pump as added efficiency.
Inside, high ceilings, hardwood floors throughout, and abundant natural light create a bright, open living space designed for both everyday living and entertaining. The kitchen is a true centerpiece, featuring granite countertops, a gas range, stainless steel appliances, under-cabinet lighting, a large center island, and a pantry—perfect for hosting or casual meals at home. The great room flows seamlessly into the dining area, making the layout feel open yet intentional.
The home offers four bedrooms and three full bathrooms, including a first-floor bedroom and full bath ideal for guests, a home office, or multigenerational living. Upstairs, the primary suite is a relaxing retreat with a tray ceiling and a spacious en-suite bath featuring a double vanity, soaking tub, and separate shower.
Enjoy Florida living with both front and rear porches, plus a backyard with room for a future pool. Ideally located near Trader Joe’s, Fresh Market, Mazzaro’s Italian Market, and some of St. Pete’s most beloved parks and neighborhoods, this home delivers modern design, thoughtful layout, and an exceptional location.

Driving directions : 22nd Ave N to 12th St N. Head north on 12th St N to 24th Ave N take a right onto 24th Ave N to address.

Property Features

Rooms Dimension Description
Great Room 17x14 First level , Wood
Dining Room 11x13 First level , Wood
Kitchen 17x15 First level , Quarry Tile , Breakfast Bar , Granite Counters , Kitchen Island , Pantry
Primary Bedroom 17x22 Second level , Wood
Bedroom 2 12x14 Second level , Wood
Bedroom 3 13x13 Second level , Wood
Bedroom 4 11x12 First level , Wood

Interior Features

  • Ceiling Fans(s)
  • High Ceilings
  • Open Floorplan
  • PrimaryBedroom Upstairs
  • Solid Surface Counters
  • Stone Counters
  • Walk-In Closet(s)

Appliances

  • Dishwasher
  • Disposal
  • Dryer
  • Gas Water Heater
  • Microwave
  • Range
  • Refrigerator
  • Tankless Water Heater
  • Washer

Heating

  • Central
  • Zoned

Laundry features

  • Laundry Closet
  • Upper Level

Air Conditioning

  • Central Air
  • Zoned

Floor Covering

  • Wood

Utilities

  • Natural Gas Connected
  • Sprinkler Well

Exterior features

  • Sidewalk

Parking features

  • Garage Door Opener
  • Garage Faces Rear

Patio and porch features

  • Covered
  • Front Porch
  • Patio
  • Rear Porch

Architectural Style

  • Contemporary

Construction Materials

  • Block
  • Stucco
  • Frame

Road Surface Type

  • Asphalt

Property Condition

  • Completed

Roof

  • Shingle

Foundation

  • Slab

Lot Features

  • Oversized Lot
  • Sidewalk

Listing information courtesy of MC HOMES REALTY INC

All listing information is deemed reliable but not guaranteed and should be independently verified through personal inspection by appropriate professionals. Listings displayed on this website may be subject to prior sale or removal from sale; availability of any listing should always be independently verified.
Listing information is provided for consumer personal, non-commercial use, solely to identify potential properties for potential purchase; all other use is strictly prohibited and may violate relevant federal and state law.
Listing data comes from My Florida Regional MLS.