Українська / Español / Русский

Julia Vakulenko - Broker -

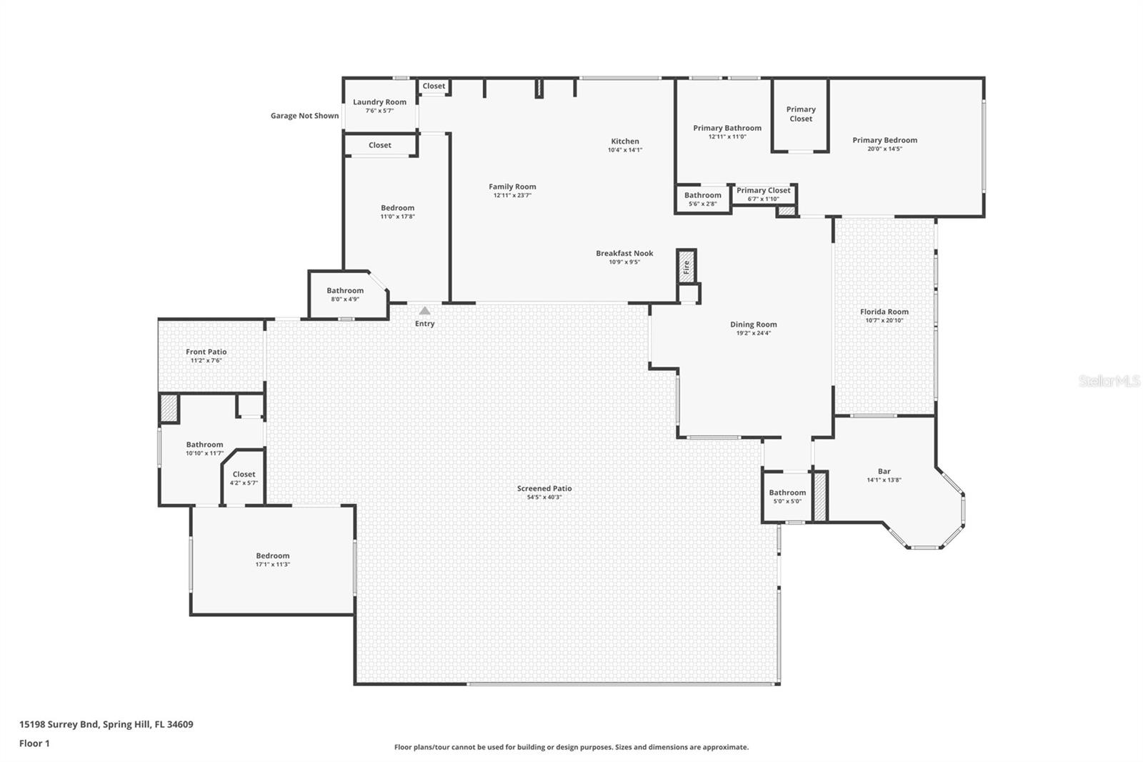
Welcome home! She's a beauty! Cul-de-sac lot Oversized, private lot Aerial view TB8470440 Come on in! Look at this courtyard pool! Casita entrance with separate bath entrance Imagine morning coffee out here... ... or afternoon cocktails... ...or just bask in the SUN! Open kitchen/family room TB8470440 Room for dinette Newer appliances TB8470440 TB8470440 Corner fireplace leads to formal dining room HUGE dining room/living room with Florida room off the back Beautiful fixtures TB8470440 TB8470440 TB8470440 Large primary bedroom TB8470440 Views from primary bedroom windows Stone accent wall in primary Closets on either side of primary bathroom entry Dual vanity/sinks Walk in shower and soaking tub LARGE Florida room... ...with a wall of windows! A perfect place to unwind and watch golf Views on views on views Great flex-room Par 3, 15th hole right in your backyard! Half Bath Laundry (off garage) and 3rd bedroom 3rd bedroom with cabana access and full bath 3rd bedroom Full bath Casita/In-law/Guest suite Lots of light! Full bath adjoining casita Rear Exterior TB8470440 Golf path - no side neighbors! Lush landscaping TB8470440 TB8470440 Floorplan Pickelball/Tennis/Basketball Olympic-sized community pool Golf cart to Silverthorn Wine & Grill for dinner! Dinner/Drinks at the Clubhouse right in your own neighborhood!
Loading map ...
Loading map ...

15198 SURREY BND, SPRING HILL, 34609

  • $589,000
  • Price changed 03/01/2026 from $599,000, -1.67%
  • 3 Beds, 3 Baths (and 1 half-baths) , 2,788 Sq.Ft
  • County: Hernando
  • Subdivision: SILVERTHORN PH 2B


Property highlights

  • MLS#: TB8470440
  • 18,200.00 lot size Sq.Ft.
  • Year built: 2000
  • Parking spaces: 2
  • Pool: Private pool Community pool
  • Listed: 02/11/2026
  • Taxes: $7,698.00
  • HOA fees (monthly): $209.73
  • Average Monthly Fees (not including CDD, if any): $209.73
  • Maintenance fee includes: Cable TV, Pool, Internet and Security
  • Virtual Tour

Property Overview

Motivated seller!
Welcome to Silverthorn’s hidden gem... this coveted cabana-style home is tucked away on one of the community’s few peaceful cul-de-sacs, offering an extraordinary blend of privacy, elegance, and Florida living at its finest. This stunning home redefines the concept of indoor-outdoor living — a true entertainer’s dream!

This one is all sun, sand and sea! Step inside your front doors, and you’ll be welcomed by a courtyard pool oasis, at the heart of the home, providing a seamless flow between the main residence and the guest wing. Additionally, you'll find the stylish Casita, perfect for overnight guests, in-laws, or a private home office retreat. Unique to this property, the knock-down wall design allows you to open the pool area to enjoy lush tropical gardens, filling the space with light and fresh air while maintaining your perfect sense of privacy.

All living areas of the home open up to the central cabana/pool area... talk about dinner with a view! Living areas are large and light-filled. The rear of the home boasts a 3-seasons room with a wall full of windows, allowing so much natural light to flow in. The bonus flex room overlooks the serene Par 3 #15 golf hole, offering one of the most picturesque views in all of Silverthorn — the ideal spot for morning coffee or evening sunsets. Whether hosting a lively party or enjoying a quiet afternoon swim, this home is designed for those who love to live, relax and entertain effortlessly. You'll also appreciate the efficiency of this home - paid-in-full solar and newer appliances keep utilities low.

Beyond your front door, the Silverthorn community offers a warm and social lifestyle — from its vibrant pickleball community to the challenging golf course that winds through rolling greens. Excitement is in the air as the new Silverthorn Bar & Grille owners revitalize the heart of the neighborhood, bringing back a local favorite spot to gather with friends for casual beverages, delicious dinners and community connection. Silverthorn provides the perfect blend of having all conveniences - shopping, dining, all that Nature Coast has to offer - within minutes, while still enjoying a serene, quiet neighborhood feel.

Come take a look at 15198 Surrey Bend and you'll quickly realize that this is not just a home - it's your own personal Florida retreat.

Driving directions : Barclay to Silverthorn Blvd, through gate to Left onto Golf Club Lane to end, Left onto Championship Cup Lane to end, to Left onto Surrey Bend; house on the Right at end of Cul-de-sac.

Property Features

Rooms Dimension Description
Kitchen 10x18 First level
Dining Room 16x23 First level
Living Room 13x21 First level
Florida Room 20x11 First level
Primary Bedroom 19x14 First level
Primary Bathroom 10x11 First level
Bedroom 3 17x11 First level
Bathroom 2 10x17 First level
Bathroom 3 11x13 First level
Bonus Room 16x14 First level
Bedroom 2 11.5x16 First level
Bathroom 4 12x11 First level

Interior Features

  • Ceiling Fans(s)
  • Coffered Ceiling(s)
  • Eat-in Kitchen
  • Kitchen/Family Room Combo
  • Living Room/Dining Room Combo
  • Primary Bedroom Main Floor
  • Stone Counters
  • Walk-In Closet(s)

Appliances

  • Dishwasher
  • Dryer
  • Electric Water Heater
  • Microwave
  • Range
  • Refrigerator
  • Washer

Heating

  • Central
  • Electric

Laundry features

  • Inside
  • Laundry Room

Air Conditioning

  • Central Air

Fireplace

  • Family Room

Floor Covering

  • Laminate
  • Tile
  • Wood

Utilities

  • Cable Connected
  • Public
  • Sprinkler Well
  • Underground Utilities

Exterior features

  • Courtyard
  • Lighting
  • Private Mailbox
  • Sidewalk
  • Sliding Doors

Pool features

  • Screen Enclosure
  • Solar Cover
  • Solar Heat

Parking features

  • Driveway
  • Ground Level

View

  • Golf Course

Patio and porch features

  • Covered
  • Enclosed

Architectural Style

  • Courtyard

Community Features

  • Clubhouse
  • Deed Restrictions
  • Fitness Center
  • Gated Community - Guard
  • Golf Carts OK
  • Golf
  • Playground
  • Pool
  • Restaurant
  • Sidewalks
  • Tennis Court(s)
  • Street Lights

Association Amenities

  • Basketball Court
  • Cable TV
  • Clubhouse
  • Fitness Center
  • Gated
  • Golf Course
  • Pickleball Court(s)
  • Playground
  • Pool
  • Security
  • Tennis Court(s)

Security Features

  • Gated Community

Construction Materials

  • Block
  • Stucco

Other Structures

  • Cabana

Road Surface Type

  • Asphalt

Roof

  • Shingle

Foundation

  • Slab

Vegetation

  • Mature Landscaping
  • Trees/Landscaped
  • Wooded

Lot Features

  • Cul-De-Sac
  • Landscaped
  • Level
  • Near Golf Course
  • Oversized Lot
  • Private
  • Sidewalk
  • Paved

School Information


Listing information courtesy of CENTURY 21 INTEGRA

All listing information is deemed reliable but not guaranteed and should be independently verified through personal inspection by appropriate professionals. Listings displayed on this website may be subject to prior sale or removal from sale; availability of any listing should always be independently verified.
Listing information is provided for consumer personal, non-commercial use, solely to identify potential properties for potential purchase; all other use is strictly prohibited and may violate relevant federal and state law.
Listing data comes from My Florida Regional MLS.