Українська / Español / Русский

Julia Vakulenko - Broker -

Front showing with Lanai space at front door. TB8468080 Front of Townhome Open Floor plan with living, dining and kitchen combo. TB8468080 TB8468080 TB8468080 TB8468080 TB8468080 TB8468080 TB8468080 TB8468080 Guest half bath downstairs. Master Suite TB8468080 Master Closet Guest Room or Office Master bathroom upstairs and accessible through hall as well. Washer/Dryer located upstairs. TB8468080 TB8468080 TB8468080 Screene lanai for privacy TB8468080 TB8468080 TB8468080 Community Pool TB8468080 TB8468080 TB8468080 TB8468080 TB8468080
Loading map ...
Loading map ...

11008 BLACK SWAN CT, SEFFNER, 33584



Property highlights

  • MLS#: TB8468080
  • 900.00 lot size Sq.Ft.
  • Year built: 2006
  • Pool: Community pool
  • Listed: 01/26/2026
  • Taxes: $1,635.12
  • HOA fees (monthly): $230.92
  • Average Monthly Fees (not including CDD, if any): $230.92
  • Maintenance fee includes: Pool, Maintenance Structure and Maintenance Grounds
  • Building Name: TOWNHOMES OF LAKEVIEW VILLAGE
  • Virtual Tour

Property Overview

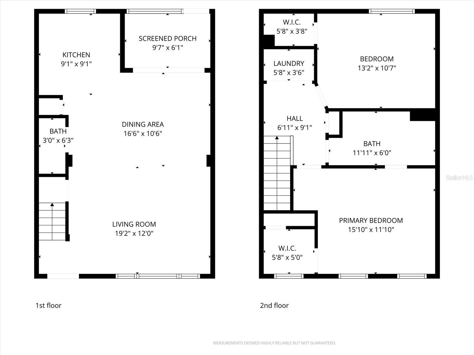
Nestled in the charming Townhomes of Lakeview Village, this tranquil two-bedroom, one-and-a-half-bath townhome presents an inviting open floor plan encompassing the living area, dining space, and kitchen. The kitchen is adorned with stunning countertops and features newer appliances, while the bar top provides a view of the entire living space. A convenient half bath is located on the main floor.

This townhome also boasts a screened lanai that overlooks a conservation area, enhancing the serene atmosphere. Upstairs, you'll discover the master suite along with a guest room. The master bathroom is accessible from both the master bedroom and the hallway, while the washer and dryer are conveniently tucked away in a closet upstairs. Community amenities include a pool, sidewalks, and additional features for residents to enjoy.

Driving directions : Heads towards Williams Road. Take left onto Black Swan Ct. The home is on the left.

Property Features

Rooms Dimension Description
Kitchen 10x10 First level , Ceramic Tile , Breakfast Bar , Pantry , Window/Skylight in Bath
Dining Room 17x11 First level
Living Room 20x12 First level
Primary Bedroom 16x12 Second level
Bedroom 1 14x11 Second level

Interior Features

  • Ceiling Fans(s)
  • High Ceilings
  • Kitchen/Family Room Combo
  • Living Room/Dining Room Combo
  • Open Floorplan
  • PrimaryBedroom Upstairs
  • Thermostat

Appliances

  • Dishwasher
  • Microwave
  • Refrigerator

Heating

  • Central

Laundry features

  • Inside
  • Upper Level

Air Conditioning

  • Central Air

Floor Covering

  • Luxury Vinyl

Utilities

  • Cable Available
  • Electricity Available
  • Electricity Connected
  • Water Connected

Exterior features

  • Sidewalk
  • Sliding Doors

Parking features

  • Guest

Pets restrictions

  • Check with the Community and or out county for any restrictions.

Community Features

  • Deed Restrictions

Construction Materials

  • Vinyl Siding

Road Surface Type

  • Asphalt

Roof

  • Shingle

Foundation

  • Slab

School Information


Listing information courtesy of TONILISA & CO

All listing information is deemed reliable but not guaranteed and should be independently verified through personal inspection by appropriate professionals. Listings displayed on this website may be subject to prior sale or removal from sale; availability of any listing should always be independently verified.
Listing information is provided for consumer personal, non-commercial use, solely to identify potential properties for potential purchase; all other use is strictly prohibited and may violate relevant federal and state law.
Listing data comes from My Florida Regional MLS.