Українська / Español / Русский

Julia Vakulenko - Broker -

TB8456664 TB8456664 TB8456664 TB8456664 TB8456664 TB8456664 TB8456664 TB8456664 TB8456664 TB8456664 TB8456664 TB8456664 TB8456664 TB8456664 TB8456664 TB8456664 TB8456664 TB8456664 TB8456664 TB8456664 TB8456664 TB8456664
Loading map ...
Loading map ...

17260 ENGLISH CHESTNUT WAY, LAND O LAKES, 34638

  • $312,990
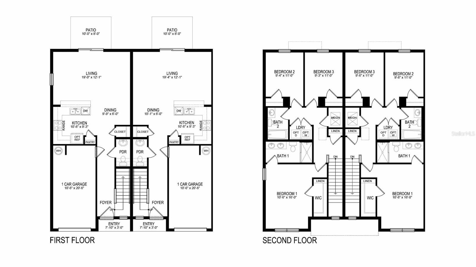
  • 3 Beds, 2 Baths (and 1 half-baths) , 1,463 Sq.Ft
  • County: Pasco
  • Subdivision: SALEM TOWNHOMES


Property highlights

  • MLS#: TB8456664
  • Year built: 2026
  • Parking spaces: 1
  • Pool: Community pool
  • Listed: 12/15/2025
  • Annual CDD fee (inc. in Taxes): $2,225.00
  • HOA fees (monthly): $56.00
  • Average Monthly Fees (not including CDD, if any): $56.00
  • Maintenance fee includes: Maintenance Grounds
  • Building Name: 0
  • Virtual Tour

Property Overview

Under Construction. The builder is offering buyers up to $25,000 towards closing costs with the use of a preferred lender and title company. Located off Tower Rd, Westwood brings new homes to Land O’ Lakes and is just minutes from the Suncoast parkway. The community, located in a very desirable area, offers a pool, cabana, playground, dog park, passive park, and paved trails. Homeowners will have access to a multitude of excellent conveniences, including close proximity to State Road 54, shopping, restaurants, and of course, the Suncoast Parkway. The Tampa airport and downtown Tampa are both just a short 30-minute drive away. The zoned schools are all excellently rated and not far from the community. Westwood will feature our Express series townhomes. Each home is constructed with all concrete block construction on 1st and 2nd stories and Home is Connected; D.R. Horton’s Smart Home System.
Pictures, photographs, colors, features, and sizes are for illustration purposes only and will vary from the homes as built. Home and community information, including pricing, included features, terms, availability, and amenities, are subject to change and prior sale at any time without notice or obligation. Materials may vary based on availability. D.R. Horton Reserves all Rights.

Driving directions : Take I-75 Exit 275 toward Land O’Lakes/ Tarpon Springs. Keep Left at the fork to continue toward FL-56 West. Continue onto FL-54 for about 8 miles, turn right onto Ballantrae Blvd., Left onto Bud Bexley Pkwy/Tower RD, then Left on Hazel Bay Rd.

Property Features

Rooms Dimension Description
Great Room 19x12 First level , Ceramic Tile
Kitchen 10x9 First level , Ceramic Tile
Primary Bedroom 11x16 Second level , Carpet

Interior Features

  • Open Floorplan

Appliances

  • Dishwasher
  • Electric Water Heater
  • Microwave
  • Refrigerator
  • Washer

Heating

  • Central
  • Heat Pump

Laundry features

  • Laundry Room

Air Conditioning

  • Central Air

Floor Covering

  • Carpet
  • Luxury Vinyl

Utilities

  • Public

Exterior features

Parking features

  • Parking Pad

Pets restrictions

  • Per HOA Guidelines

Community Features

  • Park
  • Playground
  • Pool

Association Amenities

  • Clubhouse
  • Playground
  • Pool

Construction Materials

  • Block
  • Stucco

Road Surface Type

  • Paved

Property Condition

  • Under Construction

Roof

  • Shingle

Foundation

  • Slab

School Information


Listing information courtesy of D R HORTON REALTY OF TAMPA LLC

All listing information is deemed reliable but not guaranteed and should be independently verified through personal inspection by appropriate professionals. Listings displayed on this website may be subject to prior sale or removal from sale; availability of any listing should always be independently verified.
Listing information is provided for consumer personal, non-commercial use, solely to identify potential properties for potential purchase; all other use is strictly prohibited and may violate relevant federal and state law.
Listing data comes from My Florida Regional MLS.