Українська / Español / Русский

Julia Vakulenko - Broker -

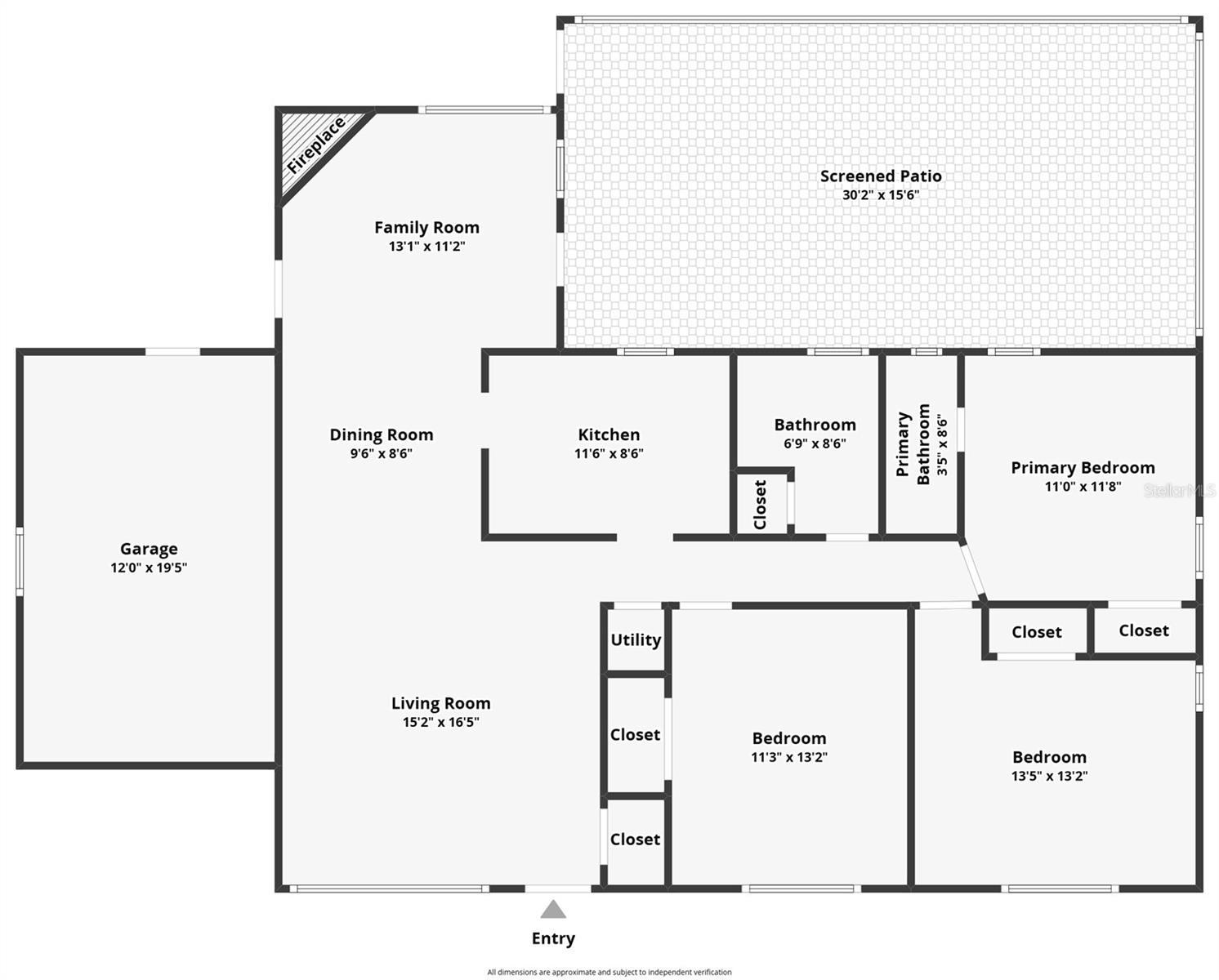
Front View Side View Plenty of Parking Living Area - Vaulted Ceilings Living Area - Hardwood Floors Living Area - Light and Bright Dining Area - Hardwood Floors Family Room Area - Wood Burning Fireplace Family Room Area - Great View of the Backyard and Screened Patio Dining Area - Just off the Kitchen Kitchen - Ceramic Tile Floors Kitchen - Plenty of Cabinets and Counterspace Kitchen - All Appliances Included Kitchen - Pass Thru to Screened Patio Kitchen Primary Bedroom Primary Bath Primary Bath 2nd Bedroom 2nd Bedroom 2nd Bedroom Full Bath 3rd Bedroom 3rd Bedroom 3rd Bedroom Screened Patio - Ceramic Tile Floors Screened Patio - Spacious Screened Patio Large Backyard Floorplan
Loading map ...
Loading map ...

110 GLEN RIDGE AVENUE, TEMPLE TERRACE, 33617



Property highlights

  • MLS#: TB8456481
  • 10,100.00 lot size Sq.Ft.
  • Year built: 1957
  • Parking spaces: 1
  • Pool: Community pool

Property Overview

Welcome to 110 Glen Ridge Ave, a charming and well-maintained 3-bedroom, 1.5-bath home tucked away on a quiet street in the heart of Temple Terrace. This inviting residence offers a functional layout, comfortable living spaces, and classic character throughout. The main living area features hardwood floors, abundant natural light, and a cozy fireplace that serves as a warm focal point for relaxing evenings or entertaining guests. The adjacent dining area flows seamlessly into the kitchen, creating an easy and inviting space for everyday living and gatherings. The kitchen offers ample cabinetry and counter space with views overlooking the backyard. All three bedrooms are generously sized, and the full bathroom and convenient half bath provide functionality for both family and guests. Step outside to enjoy the fully fenced backyard, ideal for pets, play, gardening, or outdoor entertaining. The spacious screened lanai extends your living area and is perfect for enjoying Florida’s indoor-outdoor lifestyle year-round. A one-car garage adds both storage and everyday practicality.Located just minutes from the Temple Terrace Golf & Country Club, Riverhills Park, Bonnie Brea Park, and the Hillsborough River, this home is also conveniently close to USF, shopping, dining, and major roadways. As an added bonus, the Temple Terrace Golf & Country Club offers a complimentary three-month social membership for new residents, providing access to dining, social events, and club amenities. This property offers an excellent opportunity to enjoy the charm, convenience, and active lifestyle that make Temple Terrace such a desirable place to call home.

Driving directions : From the corner of 56th Street and Glen Ridge Ave, go east on Glen Ridge Ave to the house on the left.

Property Features

Rooms Dimension Description
Living Room 15.2x16.5 First level , Wood , Ceiling Fan(s)
Dining Room First level , Wood
Family Room 13.1x11.2 First level , Wood , Ceiling Fan(s)
Kitchen 11.6x8.6 First level , Ceramic Tile
Primary Bedroom 11x11.8 First level , Wood
Primary Bathroom First level , Ceramic Tile
Bedroom 2 11.3x13.2 First level , Wood , Ceiling Fan(s)
Bedroom 3 13.5x13.2 First level , Wood , Ceiling Fan(s)
Balcony/Porch/Lanai 30.2x15.6 First level , Ceramic Tile , Ceiling Fan(s)

Interior Features

  • Ceiling Fans(s)
  • Living Room/Dining Room Combo

Appliances

  • Cooktop
  • Dishwasher
  • Dryer
  • Electric Water Heater
  • Microwave
  • Range Hood
  • Refrigerator
  • Washer

Heating

  • Central

Laundry features

  • In Garage

Air Conditioning

  • Central Air

Fireplace

  • Family Room
  • Wood Burning

Floor Covering

  • Ceramic Tile
  • Wood

Utilities

  • BB/HS Internet Available
  • Cable Available
  • Electricity Connected
  • Fiber Optics
  • Sewer Connected
  • Water Connected

Exterior features

  • Private Yard
  • Rain Gutters

Parking features

  • Garage Door Opener

Patio and porch features

  • Covered
  • Rear Porch
  • Screened

Architectural Style

  • Mid-Century Modern

Community Features

  • Fitness Center
  • Golf Carts OK
  • Golf
  • Park
  • Playground
  • Pool
  • Tennis Court(s)
  • Street Lights

Construction Materials

  • Block

Road Surface Type

  • Paved

Roof

  • Other

Foundation

  • Slab

Vegetation

  • Mature Landscaping
  • Oak Trees
  • Trees/Landscaped

Lot Features

  • City Limits
  • Paved

School Information


Listing information courtesy of CENTURY 21 ELITE LOCATIONS, INC

All listing information is deemed reliable but not guaranteed and should be independently verified through personal inspection by appropriate professionals. Listings displayed on this website may be subject to prior sale or removal from sale; availability of any listing should always be independently verified.
Listing information is provided for consumer personal, non-commercial use, solely to identify potential properties for potential purchase; all other use is strictly prohibited and may violate relevant federal and state law.
Listing data comes from My Florida Regional MLS.