Українська / Español / Русский

Julia Vakulenko - Broker -

Welcome to Beautiful Ocean Sands Beachfront Bliss Located in the Heart of Madeira Beach Penthouse Level Condo Beachfront, Heated Pool and Spa Expansive Sliding Doors Capture Sweeping Gulf Views Comfortable Sleeper Sofa King Sized Bed Open Concept Private Balcony Large Sliders Open to Enjoy the Gulf Breeze Comfortable Coastal Charm Fully Furnished and Turnkey Fully Stocked Kitchen with Gulf Views Spacious Kitchen TB8456137 TB8456137 Top Floor Views Tranquil Blue Water as Far as the Eye Can See! Bathroom with Tub Shower Combo Entry Hall with Ample Closet Space Newer Full Size Washer and Dryer Heated Pool and Spa TB8456137 TB8456137 Resort Style Amenities BBQ Grills and Tiki Bar Sundeck and Loungers Relax at the Tiki Bar with Sink Have fun with Shuffleboard Enjoy Daily Swims and Walks on the Beach TB8456137 TB8456137 Newly Renovated Lobby Secured Entry TB8456137 TB8456137 Miles of Pristine Coastline Walk to ROC Park TB8456137 Floor Plan Close to John's Pass Village Explore John's Pass Village Enjoy Incredible Nightly Sunsets!
Loading map ...
Loading map ...

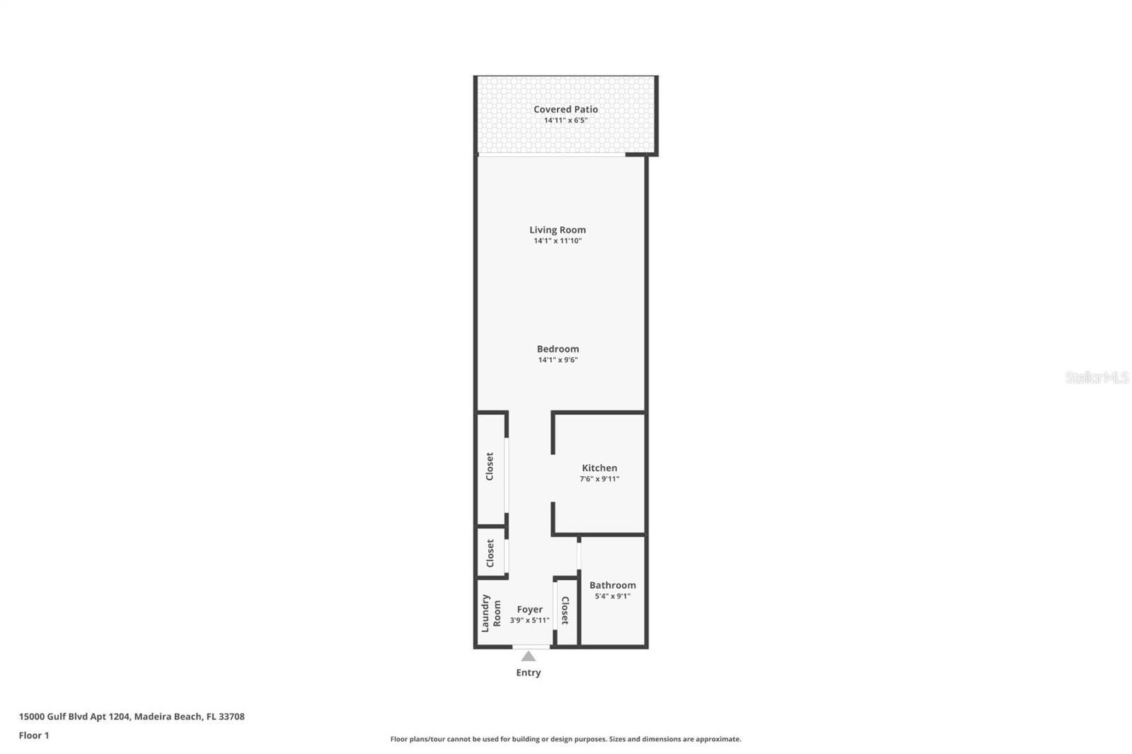
15000 GULF BLVD #1204, MADEIRA BEACH, 33708



Property highlights

  • MLS#: TB8456137
  • 77,122.00 lot size Sq.Ft.
  • Year built: 1981
  • Floor: 12
  • Pool: Community pool
  • Waterfront: (2 ft)
  • Listed: 12/12/2025
  • Taxes: $7,311.00
  • Condo maintenance: $399.00 Monthly
  • Average Monthly Fees (not including CDD, if any): $399.00
  • Maintenance fee includes: Cable TV, Common Area Taxes, Pool, Escrow Reserves Fund, Insurance, Internet, Maintenance Structure, Maintenance Grounds, Management, Recreational Facilities, Sewer, Trash and Water
  • Building Name: N/A
  • Virtual Tour

Property Overview

Discover breathtaking, top-floor Gulf views from this fully furnished, turnkey, income producing penthouse studio in Ocean Sands, beautifully positioned in the heart of Madeira Beach. This direct beachfront retreat features an inviting layout with a brand-new HVAC, newer in-unit washer and dryer, newly installed front door with electronic lock, king-size bed, reclining sofa, comfortable sleeper sofa and dinette. Expansive wall-to-wall sliding glass doors open to your private balcony where you can unwind to the sound of the waves and vibrant sunset colors. Ocean Sands offers an impressive collection of resort-style amenities including a heated pool and spa, an oversized beachfront deck with lounge seating, shuffleboard and tiki-style gathering areas, direct beach access, under-building parking, secured entry, and private storage on the twelfth floor. Recent building improvements include a resurfaced pool with updated equipment, and renovated lobby, while a new roof and elevator upgrades are scheduled for 2026. Marvel at the ultra-low HOA fee that includes cable, internet, water, sewer and trash making ownership effortless, whether you are seeking a second home, an income-producing property with a two-week minimum rental period, or a smooth 1031 exchange opportunity. Perfectly situated for convenience and fun, this residence is moments from restaurants, grocery stores, cafés, recreation and entertainment. Spend your days exploring nearby Waterfront ROC Park with its trails, sports courts, fishing pier and local events, or visit the famous John's Pass Village for boutique shopping, boat tours, parasailing and waterfront dining. Downtown St. Petersburg's vibrant arts scene, world-class museums, breweries and the iconic St. Pete Pier are just a short drive away, with Clearwater and International Airports conveniently located about thirty minutes from your door. This is the ideal blend of relaxation, recreation and effortless coastal living. Schedule your private tour today!

Driving directions : From Treasure Island, North on Gulf Blvd, Condo will be on the Left at Tom Stuart Causeway.

Property Features

Rooms Dimension Description
Kitchen 7.6x9.11 First level , Tile
Primary Bedroom 14.1x9.6 First level , Carpet , Ceiling Fan(s)
Living Room 14.1x11.1 First level , Carpet , Ceiling Fan(s)
Primary Bathroom 5.4x9.1 First level , Tile
Balcony/Porch/Lanai 14.11x6.5 First level , Concrete

Interior Features

  • Ceiling Fans(s)
  • Open Floorplan
  • Window Treatments

Appliances

  • Disposal
  • Dryer
  • Freezer
  • Ice Maker
  • Microwave
  • Range
  • Washer

Heating

  • Central
  • Electric

Laundry features

  • Inside
  • Laundry Closet

Air Conditioning

  • Central Air

Floor Covering

  • Carpet
  • Tile

Utilities

  • BB/HS Internet Available
  • Cable Connected
  • Electricity Connected
  • Phone Available
  • Public
  • Sewer Connected
  • Water Connected

Exterior features

  • Balcony
  • Outdoor Grill
  • Sidewalk
  • Sliding Doors

Parking features

  • Assigned
  • Covered
  • Guest
  • Reserved
  • Basement

View

  • Water

Pets restrictions

  • Owners may have pets, tenants may not. Verify all pet restrictions with HOA
  • 1 pet(s) allowed
  • Small (16-35 Lbs.)

Community Features

  • Buyer Approval Required
  • Community Mailbox
  • Pool
  • Sidewalks
  • Street Lights

Association Amenities

  • Cable TV
  • Elevator(s)
  • Maintenance
  • Pool
  • Shuffleboard Court
  • Spa/Hot Tub

Security Features

  • Fire Sprinkler System

Construction Materials

  • Concrete

Other Structures

  • Storage

Road Surface Type

  • Paved

Property Condition

  • Completed

Roof

  • Built-Up

Foundation

  • Slab

Lot Features

  • FloodZone
  • Level
  • Near Marina
  • Near Public Transit
  • Sidewalk
  • Paved

School Information


Listing information courtesy of CENTURY 21 BEGGINS

All listing information is deemed reliable but not guaranteed and should be independently verified through personal inspection by appropriate professionals. Listings displayed on this website may be subject to prior sale or removal from sale; availability of any listing should always be independently verified.
Listing information is provided for consumer personal, non-commercial use, solely to identify potential properties for potential purchase; all other use is strictly prohibited and may violate relevant federal and state law.
Listing data comes from My Florida Regional MLS.