Українська / Español / Русский

Julia Vakulenko - Broker -

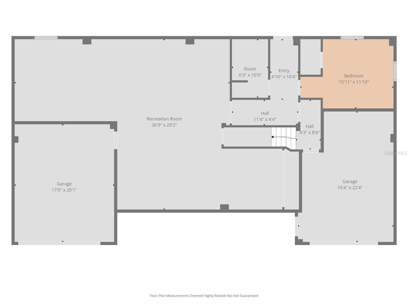
TB8454528 Entrance to the home Over sized lot Private entrance TB8454528 TB8454528 View from the front porch. Nice privacy Charming front porch TB8454528 TB8454528 Foyer Living room Cozy fireplace in the living room with beautiful views Updated kitchen View from the kitchen sink Kitchen is open to the family room and family room TB8454528 TB8454528 TB8454528 TB8454528 Balcony off of the living room and family room TB8454528 TB8454528 Dining area with amazing views Master bedroom with a sitting area and beautiful views TB8454528 Hallway to master bathroom. Beautiful closet doors TB8454528 Master bathroom, fireplace on the wall TB8454528 TB8454528 Office, den or a 4th bedroom TB8454528 Half bathroom next to the office Bedroom 2. TB8454528 2nd bathroom Bedroom 3 TB8454528 Downstairs, door to outside, storage, and entrance to gameroom Downstairs room, could be a bedroom, playroom or office TB8454528 Very large 1st floor, many options TB8454528 TB8454528 TB8454528 First floor deck TB8454528 TB8454528 TB8454528 TB8454528 Gas firepit TB8454528 TB8454528 TB8454528 TB8454528 TB8454528 TB8454528 TB8454528 TB8454528
Loading map ...
Loading map ...

401 HARBOR DR, BELLEAIR BEACH, 33786



Property highlights

  • MLS#: TB8454528
  • 14,179.00 lot size Sq.Ft.
  • Year built: 1996
  • Parking spaces: 2
  • Pool: Private pool
  • Waterfront: (75 ft)

Property Overview

This Key West–style waterfront home offers beautiful wide-open water views, an EXTRA LARGE LOT (.33 acre), and a setting that feels like a private entrance with no through traffic, surrounded by mature trees for exceptional privacy. Elevated construction provided peace of mind during recent storms, with no damage at all to the living area. A major renovation completed in 2023 which includes hurricane-rated windows and sliders, an updated kitchen and bathrooms, tile flooring throughout with carpet in one bedroom. The home features three bedrooms plus an office or den that could easily serve as a 4th bedroom, along with 2.5 baths. Enjoy stunning water views from most rooms, an oversized 756-square-foot garage, and natural gas servicing two fireplaces, an outdoor firepit, grill, and tankless water heater. Plenty of storage with many built-ins, a large inside laundry room and a lot of room on the first floor. Outdoor living shines with an extra-long dock with lifts, an updated pool and spa, a gas outdoor firepit, and an oversized lot. The first floor is currently used as an expansive game room and offers endless possibilities as an office, playroom, or additional living space. Carefree metal roof and durable Hardiplank siding complete this exceptional waterfront property. Super convenient location, walk to the beach, many restaurants and close to all major thoroughfares. Schedule your appointment to see this spectacular home.

Driving directions : Gulf Boulevard, Belleair Beach to East on 4th Street. Road curves to the right, home is on the left, private driveway.

Property Features

Rooms Dimension Description
Living Room Second level , Ceramic Tile
Kitchen Second level , Ceramic Tile
Primary Bedroom Second level , Ceramic Tile
Family Room Second level , Ceramic Tile
Dining Room Second level , Ceramic Tile

Interior Features

  • Cathedral Ceiling(s)
  • Ceiling Fans(s)
  • High Ceilings
  • Kitchen/Family Room Combo
  • Open Floorplan
  • Split Bedroom
  • Walk-In Closet(s)

Appliances

  • Dishwasher
  • Disposal
  • Dryer
  • Gas Water Heater
  • Microwave
  • Range
  • Refrigerator
  • Washer
  • Water Softener

Heating

  • Central
  • Electric

Laundry features

  • Inside
  • Laundry Room

Air Conditioning

  • Central Air

Fireplace

  • Family Room
  • Gas
  • Other

Floor Covering

  • Carpet
  • Ceramic Tile

Utilities

  • Cable Connected
  • Electricity Connected
  • Natural Gas Connected
  • Sewer Connected
  • Water Connected

Exterior features

  • Balcony
  • Fire Pit
  • Lighting
  • Private Mailbox

Pool features

  • Gunite
  • In Ground
  • Lighting

Pets restrictions

  • Seller does not know if there are breed restrictions, the amount of pets allowed or pet size.
  • 3 pet(s) allowed
  • Extra Large (101+ Lbs.)

Construction Materials

  • Block
  • Frame

Water access details

  • Intracoastal Waterway
  • Lift
  • Seawall - Concrete

Road Surface Type

  • Asphalt

Roof

  • Metal

Foundation

  • Slab

Listing information courtesy of CHARLES RUTENBERG REALTY INC

All listing information is deemed reliable but not guaranteed and should be independently verified through personal inspection by appropriate professionals. Listings displayed on this website may be subject to prior sale or removal from sale; availability of any listing should always be independently verified.
Listing information is provided for consumer personal, non-commercial use, solely to identify potential properties for potential purchase; all other use is strictly prohibited and may violate relevant federal and state law.
Listing data comes from My Florida Regional MLS.