Українська / Español / Русский

Julia Vakulenko - Broker -

13000 98th Ave....Welcome Home! Illuminated etched glass front door entry way Come on inside Open views from the moment you walk in TB8452487 Builtin shelves and fireplace From the fireplace looking forward TB8452487 TB8452487 TB8452487 Look at the size of this Great Room Dining Room Combination TB8452487 TB8452487 TB8452487 Almost 900 square feet between Dining Room and Great Room give you that wide open feeling TB8452487 TB8452487 Pull up a stool while watching the chef cook in the Chef's Kitchen TB8452487 TB8452487 TB8452487 TB8452487 TB8452487 TB8452487 Built-in wine refrigerator Dacor gas range TB8452487 TB8452487 TB8452487 TB8452487 TB8452487 TB8452487 Entryway for the Primary Suite TB8452487 TB8452487 Dual sink vanity Laundry closet in the Primary Suite TB8452487 Primary Suite shower TB8452487 TB8452487 TB8452487 What a way to wake up TB8452487 TB8452487 TB8452487 Guest bath TB8452487 3rd Bedroom, complete with walk-in closets TB8452487 TB8452487 TB8452487 2nd bedroom 2nd bedroom also has sliders outside to the pool area. TB8452487 TB8452487 En-suite bath for the 2nd bedroom and large walk-in closet TB8452487 The ultimate Bonus, welcome to the breezeway with a wood burning fireplace. I'm calling this room football heaven. TB8452487 TB8452487 Screen-enclosed breezeway TB8452487 This room has many options, it used to be used as an Office but has so many different possibilities. TB8452487 Main Laundry room TB8452487 TB8452487 AC for 1/2 the house TB8452487 Side yard TB8452487 TB8452487 900 gallon pond for your fish. TB8452487 TB8452487 TB8452487 I've been searching for a word for this pic, PARADISE is what comes to mind. TB8452487 TB8452487 TB8452487 TB8452487 Even a pergola in the backyard for some additional shade. TB8452487 TB8452487 Full home propane Generator for just in case. AC for the other half of the house Plenty of parking for your toys, boats or trailers These are the Tesla Batteries that charge from the Tesla Solar Roof. TB8452487 TB8452487 Street view The whole outside of the home was just painted for the new owners TB8452487 TB8452487 Over an 1/2 acre of private grounds, look at the size of your palms. TB8452487 TB8452487 Up close picture of the New Tesla Solar Roof. This Solar is Owned. TB8452487
Loading map ...
Loading map ...

13000 98TH AVE, SEMINOLE, 33776



Property highlights

  • MLS#: TB8452487
  • 21,780.00 lot size Sq.Ft.
  • Year built: 1987
  • Parking spaces: 2
  • Pool: Private pool

Property Overview

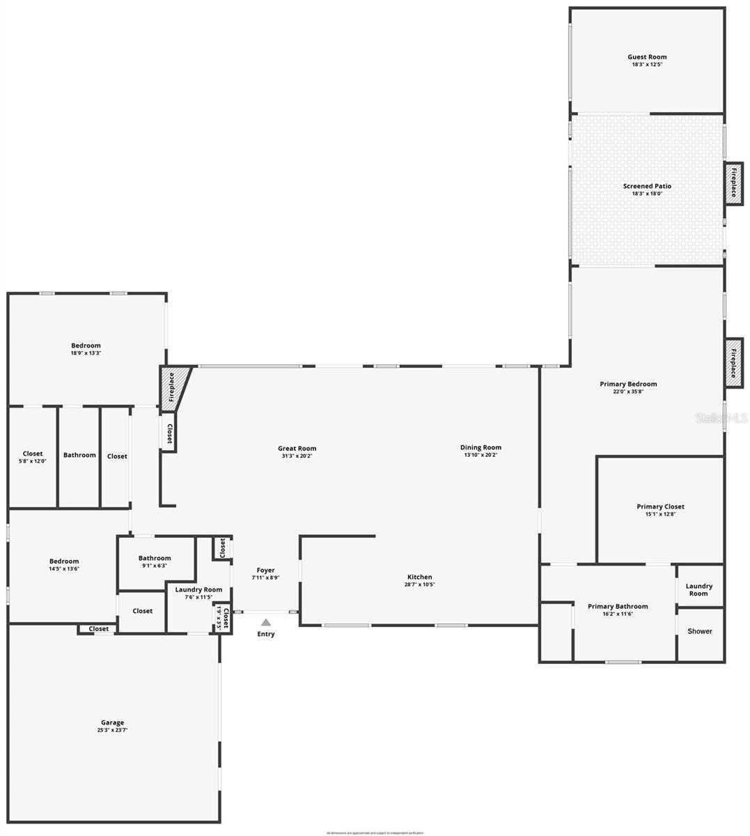
Not exactly sure where to start with this one, so here I go. 3 bedroom-3 bath-oversized 2 car garage-over half an acre-Non Flood Zone-No Evacuation Zone-3366 square feet-800 square foot Primary Bedroom-3 fireplaces-whole home generator-Tesla Solar Roof-$30 Electric Bills-dead end street-plenty of parking-8 minutes to the beach-a swimming pool oasis in your own backyard-and the List goes on. Once you walk inside, everything is wide open and extremely spacious, recently updated kitchen, granite countertops and solid wood cabinets overlooking the Great room Dining room combination. Bedrooms 2 and three are on the east end of the home with the Primary bedroom on the opposite side. Step out the sliders from the Primary bedroom and you're in the Breezeway and on the other side is the Office/Study. If you're looking for a large spacious wide open home with a completely Private feel, look NO further. This is it, schedule your Private viewing today. I've attached a List of all the recent upgrades and updates in MLS.

Driving directions : From Park Blvd and 131st---go North on 131st to 98th Ave turn right and proceed to address on the right hand side.

Property Features

Rooms Dimension Description
Primary Bedroom 21x20 First level , Ceramic Tile , Desk Built-In , Double Vanity , En Suite Bathroom , Granite Counters
Kitchen 10x26 First level , Ceramic Tile , Breakfast Bar , Built-In Shelving , Cooking Island , Exhaust Fan , Pantry
Bedroom 2 13x18 First level , Wood , En Suite Bathroom
Bedroom 3 12x11 First level , Wood
Great Room 31x20 First level , Ceramic Tile
Office 11x17 First level , Wood
Breezeway 14x10 First level , Ceramic Tile
Dining Room 14x20 First level , Ceramic Tile

Interior Features

  • Built-in Features
  • Ceiling Fans(s)
  • Eat-in Kitchen
  • High Ceilings
  • Open Floorplan
  • Primary Bedroom Main Floor
  • Solid Surface Counters
  • Solid Wood Cabinets
  • Split Bedroom
  • Stone Counters
  • Vaulted Ceiling(s)
  • Walk-In Closet(s)
  • Window Treatments

Appliances

  • Dishwasher
  • Disposal
  • Dryer
  • Exhaust Fan
  • Microwave
  • Range
  • Range Hood
  • Refrigerator
  • Tankless Water Heater
  • Washer
  • Water Filtration System
  • Water Softener
  • Wine Refrigerator

Heating

  • Central

Laundry features

  • Inside
  • Laundry Closet
  • Laundry Room

Air Conditioning

  • Central Air

Fireplace

  • Decorative
  • Gas
  • Living Room
  • Other
  • Primary Bedroom
  • Wood Burning

Floor Covering

  • Brick
  • Tile
  • Wood

Utilities

  • BB/HS Internet Available
  • Cable Available
  • Cable Connected
  • Electricity Available
  • Electricity Connected
  • Phone Available
  • Propane
  • Sewer Available
  • Sewer Connected
  • Water Available
  • Water Connected

Exterior features

  • Awning(s)
  • Fire Pit
  • Garden
  • Lighting
  • Private Yard
  • Rain Gutters
  • Sliding Doors
  • Sprinkler Metered
  • Storage

Pool features

  • Auto Cleaner
  • Chlorine Free
  • Deck
  • Gunite
  • In Ground
  • Lighting
  • Salt Water
  • Self Cleaning
  • Tile

Parking features

  • Boat
  • Curb Parking
  • Driveway
  • Garage Door Opener
  • Garage Faces Side
  • Golf Cart Parking
  • Guest
  • Off Street
  • On Street
  • Oversized
  • Parking Pad
  • RV Access/Parking
  • Workshop in Garage

View

  • Pool
  • Trees/Woods

Patio and porch features

  • Covered
  • Deck
  • Enclosed
  • Patio
  • Porch
  • Rear Porch
  • Screened

Architectural Style

  • Ranch

Construction Materials

  • Block
  • Stucco
  • Wood Siding

Other Structures

  • Storage
  • Workshop

Road Surface Type

  • Asphalt

Property Condition

  • Completed

Roof

  • Other

Foundation

  • Slab

Vegetation

  • Mature Landscaping
  • Oak Trees
  • Trees/Landscaped

Lot Features

  • Cleared
  • Landscaped
  • Oversized Lot
  • Street Dead-End
  • Paved

School Information


Listing information courtesy of SAND KEY REALTY

All listing information is deemed reliable but not guaranteed and should be independently verified through personal inspection by appropriate professionals. Listings displayed on this website may be subject to prior sale or removal from sale; availability of any listing should always be independently verified.
Listing information is provided for consumer personal, non-commercial use, solely to identify potential properties for potential purchase; all other use is strictly prohibited and may violate relevant federal and state law.
Listing data comes from My Florida Regional MLS.