Українська / Español / Русский

Julia Vakulenko - Broker -

TB8451012 TB8451012 TB8451012 TB8451012 TB8451012 TB8451012 TB8451012 TB8451012 TB8451012 TB8451012
Loading map ...
Loading map ...

6220 PALM RIVER RD, TAMPA, 33619



Property highlights

  • MLS#: TB8451012
  • 28,190.00 lot size Sq.Ft.
  • Year built: 2025
  • Parking spaces: 2

Property Overview

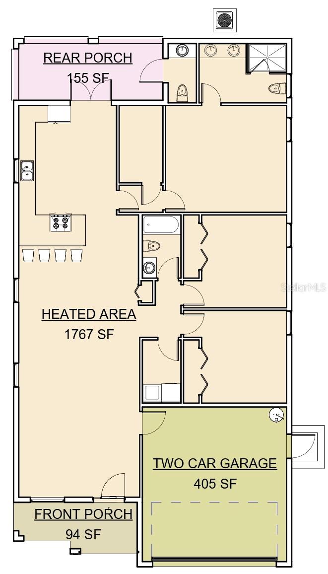
Under Construction. This stunning 3-bedroom, 2.5-bathroom home, featuring a spacious 2-car garage, is currently under construction and will be ready for move-in by January 31st. The design showcases soaring ceilings adorned with elegant tray detailing, creating an inviting atmosphere that enhances the expansive open floor plan. Large windows flood the living areas with natural light, beautifully accentuating the modern aesthetic throughout. The chef-inspired kitchen is a culinary delight, featuring sleek quartz countertops with a striking waterfall edge and a generous island that is perfect for entertaining guests. The owner's suite is a true retreat, complete with dual sinks, a frameless glass shower, and an impressive walk-in closet with ample storage. Situated on over half an acre, this property provides plenty of room for entertaining and outdoor activities, making it an ideal setting for gatherings. The unique location offers the freedom often sought in a home – with no restrictive HOA, you can truly make this space your own, enjoying the dual street access for added convenience. Privacy abounds as the lot is oversized, allowing you to enjoy your surroundings without feeling crowded. You’ll be just moments from downtown, the picturesque Tampa Bay Pass Canal, and a variety of malls and restaurants, and you'll have easy access to major highways. This remarkable home combines modern luxury with an unbeatable location—why settle for an older home when you can enjoy the advantages of new construction?

Driving directions : Get on I-275 North. Follow I-275 N to E Brandon Blvd (FL-60) in East Tampa. Take the appropriate exit (usually Exit 45A for I-4 E/FL-60 E, followed by FL-60 E/Brandon Blvd). Follow local roads from FL-60/E Brandon Blvd to Palm River Road. 6220 Palm River Rd will be on your left.

Property Features

Rooms Dimension Description
Living Room 16x20 First level
Primary Bedroom 14x16 First level
Bedroom 1 12x11 First level
Bedroom 2 12x11 First level
Kitchen 17x8 First level

Interior Features

  • Built-in Features
  • Ceiling Fans(s)
  • Eat-in Kitchen
  • High Ceilings
  • Kitchen/Family Room Combo
  • Living Room/Dining Room Combo
  • Open Floorplan
  • Other
  • Primary Bedroom Main Floor
  • Smart Home
  • Solid Surface Counters
  • Solid Wood Cabinets
  • Stone Counters
  • Thermostat
  • Tray Ceiling(s)
  • Walk-In Closet(s)

Appliances

  • Dishwasher
  • Microwave
  • Range
  • Refrigerator

Heating

  • Central

Laundry features

  • Laundry Room

Air Conditioning

  • Central Air

Floor Covering

  • Tile
  • Vinyl

Utilities

  • Other

Exterior features

  • Lighting
  • Other
  • Private Mailbox
  • Private Yard
  • Sliding Doors

View

  • Garden
  • Trees/Woods

Patio and porch features

  • Porch
  • Rear Porch

Architectural Style

  • Traditional

Construction Materials

  • Block
  • Stucco

Road Surface Type

  • Paved

Property Condition

  • Under Construction

Roof

  • Shingle

Foundation

  • Slab

Vegetation

  • Mature Landscaping
  • Trees/Landscaped

Lot Features

  • In County
  • Irregular Lot
  • Landscaped
  • Level
  • Oversized Lot
  • Paved

School Information


Listing information courtesy of REALTY BLU

All listing information is deemed reliable but not guaranteed and should be independently verified through personal inspection by appropriate professionals. Listings displayed on this website may be subject to prior sale or removal from sale; availability of any listing should always be independently verified.
Listing information is provided for consumer personal, non-commercial use, solely to identify potential properties for potential purchase; all other use is strictly prohibited and may violate relevant federal and state law.
Listing data comes from My Florida Regional MLS.