Українська / Español / Русский

Julia Vakulenko - Broker -

Must See Show Stopper!! Welcome Home-Curb Appeal! 3 Car Garage - Side entry. Oversized driveway Pool and Spa Tons of under roof outdoor space Downstairs Floorplan Upstairs Floorplan Beautiful entrance with tray ceiling Formal Livingroom with lanai access At entryway - Formal Livingroom Fully updated kitchen with stainless steel appliances, large pantry, island AND breakfast bar Fully updated kitchen with stainless steel appliances, wine cooler, large pantry, island AND breakfast bar Fully updated kitchen with stainless steel appliances, large pantry, island AND breakfast bar Fully updated kitchen with stainless steel appliances, large pantry, island AND breakfast bar Kitchen, eat-in dining area and family room combo Family room with lanai access Family room with lanai access Family room with lanai access Family room with lanai access Primary Ensuite - fully updated Primary Ensuite - fully updated - Dual Vanities Primary Ensuite - fully updated-Frameless glass shower Primary Suite with private sitting area and a private courtyard Primary Suite with private sitting area and a private courtyard Primary Suite with private sitting area and a private courtyard Sitting area with lanai access Private courtyard off of Primary suite Private courtyard off of Primary suite Private courtyard off of Primary suite Pool/Guest Bathroom - access to pool Outdoor space made for entertaining Oversized lot with private backyard Bedroom 2 - Downstairs Fully updated bathroom - shared with Bedroom 2 and 3 - Downstairs Bedroom 3 - Downstairs Bedroom 4 with private ensuite bath- Upstairs Bedroom 4 with private ensuite bath- Upstairs Ensuite bath - bedroom 4 - upstairs Bedroom 5 with private ensuite bath - Upstairs Bedroom 5 with private ensuite bath - Upstairs Ensuite bath - bedroom 5 - upstairs Laundry with storage and garage access Outdoor kitchen made for entertaining - beautiful Spanish tile Outdoor space made for entertaining Outdoor space made for entertaining Oversized lot with private backyard Oversized lot with private backyard Aerial View Entryway - Formal Dining Formal Dining Aerial View Outdoor space made for entertaining Outdoor space made for entertaining Oversized lot with private backyard Outdoor space made for entertaining Oversized lot with private backyard Oversized lot with private backyard Curb Appeal, Lush Landscaping Curb Appeal, Lush Landscaping Aerial View Aerial View Aerial View Curb Appeal, Lush Landscaping TB8442833
Loading map ...
Loading map ...

4511 COUNTRY GATE CT, VALRICO, 33594



Property highlights

  • MLS#: TB8442833
  • 22,921.00 lot size Sq.Ft.
  • Year built: 1989
  • Parking spaces: 3
  • Pool: Private pool
  • Listed: 11/24/2025
  • Taxes: $7,421.00
  • HOA fees (monthly): $25.00
  • Average Monthly Fees (not including CDD, if any): $25.00
  • Virtual Tour

Property Overview

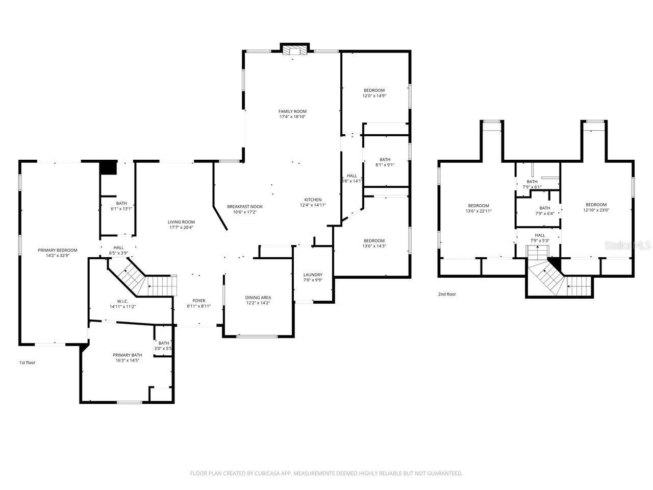
Welcome to a home that captures the essence of Florida living—where timeless design, comfort, and location come together in perfect harmony. Nestled in Country Gate, a boutique community of Valrico, this beautifully maintained 5-bedroom, 5-bathroom POOL home with a 3-car garage offers an exceptional floor plan that balances style, space, and functionality. From the moment you arrive, the curb appeal is undeniable—brick-accented elevation, lush landscaping, and an extended driveway create an elegant first impression that sets the tone for what’s inside. Step through the double front doors into a bright and welcoming interior featuring high ceilings, crown molding, and seamless transitions between formal and casual living spaces. The kitchen is a showpiece, thoughtfully remodeled with granite countertops, stainless steel appliances, soft-close cabinetry, tile backsplash, and pendant lighting that adds a modern touch. The open-concept layout connects the kitchen, breakfast nook, and family room, complete with a brick-accented fireplace and French doors that open to the lanai and pool area, creating a true indoor-outdoor living experience. The primary suite is a private retreat with double French doors to the patio, a massive walk in closet, and a spa-like ensuite bath boasting a frameless glass shower, garden soaking tub, and dual vanities with quartz counters. Two additional downstairs bedrooms share a beautifully updated bath, The fourth and fifth bedrooms are both upstairs and each offer their own ensuite bath—ideal for guests, in-laws, or a home office setup. Outdoor living shines here with a screened lanai, resurfaced pool deck, covered sitting area, and mature landscaping that ensures total privacy. Every inch of the property has been designed for comfort, relaxation, and entertaining. Recent updates include a new roof (2024) and new water heater (2024), adding to this home’s move-in-ready appeal. Located in one of Valrico’s most desirable neighborhoods, Country Gate is known for its tree-lined streets, spacious lots, and quiet charm—all just minutes from Bloomingdale Avenue, SR-60, and top-rated schools. This is more than a house; it’s a lifestyle defined by quality, community, and everyday luxury. Homes like this rarely come available—schedule your private showing today and experience why Country Gate continues to be one of Valrico’s most sought-after places to call home.

Driving directions : From I 75: Use the right 2 lanes to take exit 257 for FL-60 toward Brandon, Keep left to continue toward FL-60 E/W Brandon Blvd Continue on FL-60 E/W Brandon Blvd. Take Durant Rd to Country Gate Ct in Valrico Use any lane to turn left onto FL-60 E/W Brandon Blvd, Turn right onto Lithia Pinecrest Rd Use the 2nd from the left lane to turn left onto E Lumsden Rd, Turn right onto Durant Rd Turn right onto Little Rd, Turn right onto Country Gate Ct your Destination will be on the left

Property Features

Rooms Dimension Description
Bedroom 2 15x13 First level
Bedroom 3 13x12 First level
Bedroom 4 19x14 Second level
Bedroom 5 19x14 Second level
Dining Room 15x12 First level
Family Room 18x17 First level
Kitchen 15x14 First level , Breakfast Bar , Closet Pantry , Desk Built-In
Living Room 21x16 First level
Primary Bedroom 17x14 First level
Balcony/Porch/Lanai 40x23 First level

Interior Features

  • Cathedral Ceiling(s)
  • Ceiling Fans(s)
  • Central Vaccum
  • Eat-in Kitchen
  • High Ceilings
  • Kitchen/Family Room Combo
  • Open Floorplan
  • Primary Bedroom Main Floor
  • Split Bedroom
  • Vaulted Ceiling(s)
  • Walk-In Closet(s)
  • Wet Bar
  • Window Treatments

Appliances

  • Dishwasher
  • Disposal
  • Dryer
  • Microwave
  • Range
  • Range Hood
  • Refrigerator
  • Washer

Heating

  • Central
  • Electric

Laundry features

  • Inside
  • Laundry Room

Air Conditioning

  • Central Air

Fireplace

  • Wood Burning

Floor Covering

  • Carpet
  • Ceramic Tile
  • Wood

Utilities

  • Cable Available
  • Private
  • Sprinkler Well

Exterior features

  • Rain Gutters

Pool features

  • In Ground
  • Lighting
  • Salt Water
  • Screen Enclosure
  • Vinyl

Parking features

  • Garage Faces Rear
  • Garage Faces Side
  • On Street
  • Oversized
  • Parking Pad
  • Workshop in Garage

Patio and porch features

  • Deck
  • Patio
  • Porch
  • Screened

Pets restrictions

  • Verify with HOA

Architectural Style

  • Traditional

Community Features

  • Deed Restrictions
  • Street Lights

Association Amenities

  • Fence Restrictions

Security Features

  • Security System Owned
  • Smoke Detector(s)

Construction Materials

  • Block
  • Brick
  • Stucco

Road Surface Type

  • Asphalt

Property Condition

  • Completed

Roof

  • Shingle

Foundation

  • Slab

Vegetation

  • Mature Landscaping
  • Oak Trees
  • Trees/Landscaped

Lot Features

  • Cul-De-Sac
  • In County
  • Landscaped
  • Level
  • Oversized Lot
  • Private
  • Street Dead-End
  • Paved

School Information


Listing information courtesy of COLDWELL BANKER REALTY

All listing information is deemed reliable but not guaranteed and should be independently verified through personal inspection by appropriate professionals. Listings displayed on this website may be subject to prior sale or removal from sale; availability of any listing should always be independently verified.
Listing information is provided for consumer personal, non-commercial use, solely to identify potential properties for potential purchase; all other use is strictly prohibited and may violate relevant federal and state law.
Listing data comes from My Florida Regional MLS.