Українська / Español / Русский

Julia Vakulenko - Broker -

OM723271 OM723271 OM723271 OM723271 OM723271 OM723271 OM723271 OM723271 OM723271 OM723271 OM723271 OM723271 OM723271 OM723271 OM723271 OM723271 OM723271 OM723271 OM723271 OM723271 OM723271 OM723271 OM723271 OM723271 OM723271 OM723271
Loading map ...
Loading map ...

4026 KONA CIR, SPRING HILL, 34608



Property highlights

  • MLS#: OM723271
  • 4,356.00 lot size Sq.Ft.
  • Year built: 2026
  • Parking spaces: 1
  • Listed: 04/22/2026
  • Annual CDD fee (inc. in Taxes): $1,880.00
  • HOA fees (monthly): $8.33
  • Average Monthly Fees (not including CDD, if any): $8.33
  • Virtual Tour

Property Overview

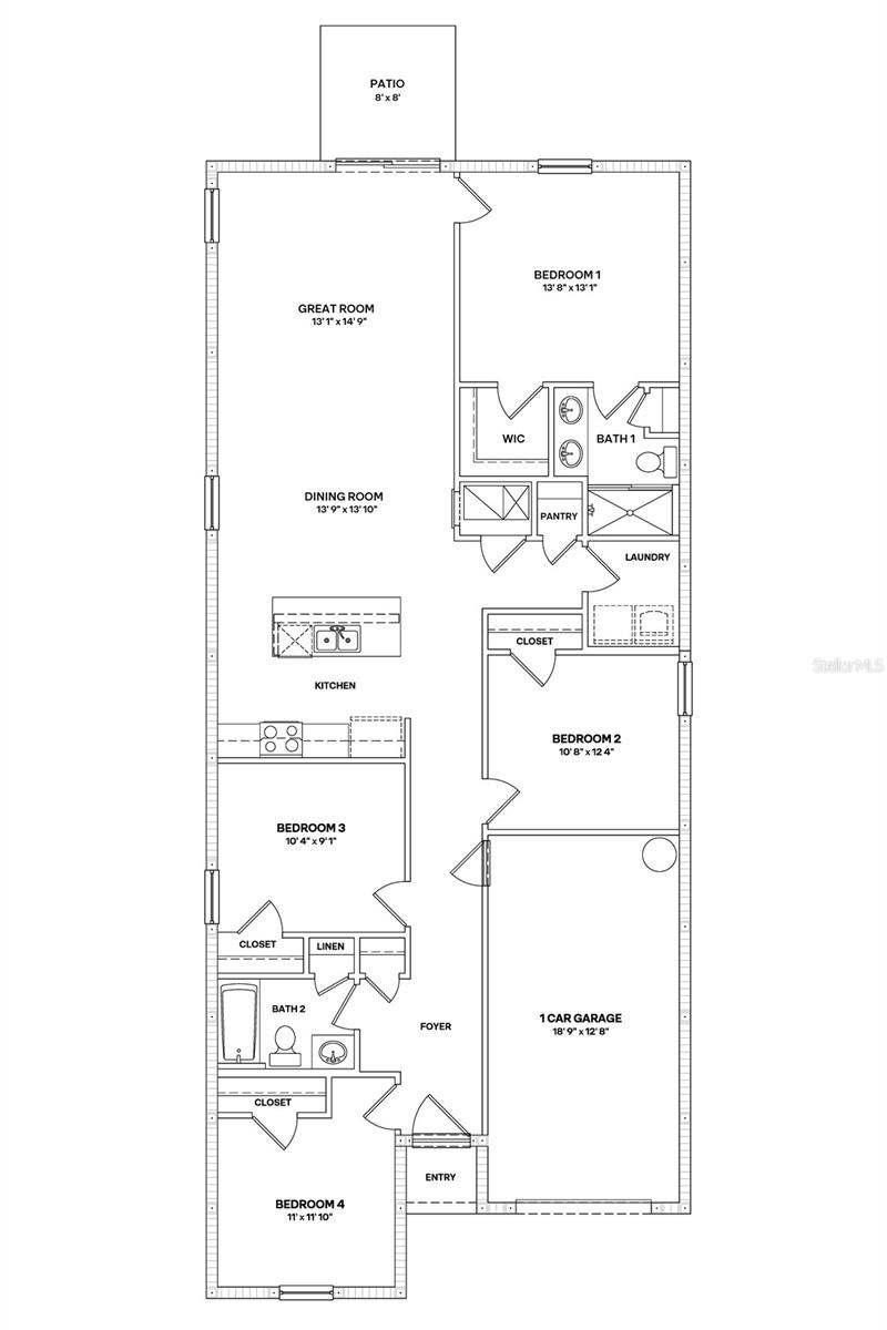
Under Construction. The Cameron floorplan is a beautifully designed single-story home that blends modern style with everyday functionality. This home offers comfort, efficiency, and versatility for today's lifestyles, featuring 4 bedrooms, 2 bathrooms, and 1,560 square feet of living space. As you step inside, you're welcomed by 3 bedrooms sharing a full bathroom with quartz countertops. The kitchen flows into the dining and living areas overlooking the outdoor patio. This open-concept living space is deal for both family time and entertaining. The kitchen showcases sleek quartz countertops, a large center island, and stainless-steel appliances. The Owner's Suite is placed in the rear of the home for added privacy and features a walk-in closet and ensuite bathroom with a double vanity sink and quartz countertops. With its modern finishes, thoughtful layout, and stylish touches throughout, the Cameron is the perfect place to call home. The Cameron is complete with a state-of-the-art smart home system that keeps you connected to your home at all times. Pictures, photographs, colors, features, and sizes are for illustration purposes only and will vary from the homes as built. Home and community information including pricing, included features, terms, availability and amenities are subjext to change and prior sale at any time without notice or obligation. CRC057592.

Driving directions : Travelling south on US-19 S/Commercial Way, drive straight through the intersection of Cortez Blvd/Hwy 50 and Hwy 19. Remaining on Hwy 19, travel for 0.5 miles and turn left onto Northcliffe Blvd. Drive on Northcliffe Blvd for approx. 1.2 miles and turn right onto Deltona Blvd. Next, travel for 0.7 miles on Deltona Blvd and turn left onto Bayside Court for 0.4 miles. Turn left onto Bay Drive traveling towards the entrance of Somerset Bay. Model row will be the third left inside the community.

Property Features

Rooms Dimension Description
Great Room 13x14 First level
Kitchen 8x10 First level
Primary Bedroom 13x13 First level

Interior Features

  • Open Floorplan

Appliances

  • Dishwasher
  • Microwave
  • Range

Heating

  • Electric
  • Heat Pump

Laundry features

  • Laundry Room

Air Conditioning

  • Central Air

Floor Covering

  • Carpet
  • Luxury Vinyl

Utilities

  • Other

Exterior features

Pets restrictions

  • Per HOA Guidelines

Construction Materials

  • Block

Road Surface Type

  • Paved

Property Condition

  • Under Construction

Roof

  • Shingle

Foundation

  • Slab

School Information


Listing information courtesy of DR HORTON REALTY OF WEST CENTRAL FLORIDA

All listing information is deemed reliable but not guaranteed and should be independently verified through personal inspection by appropriate professionals. Listings displayed on this website may be subject to prior sale or removal from sale; availability of any listing should always be independently verified.
Listing information is provided for consumer personal, non-commercial use, solely to identify potential properties for potential purchase; all other use is strictly prohibited and may violate relevant federal and state law.
Listing data comes from My Florida Regional MLS.