Українська / Español / Русский

Julia Vakulenko - Broker -

L4960206 L4960206
Loading map ...
Loading map ...

907 E 26TH AVE, TAMPA, 33605



Property highlights

  • MLS#: L4960206
  • 6,324.00 lot size Sq.Ft.
  • Year built: 2025
  • Listed: 03/12/2026
  • Taxes: $1,521.51

Property Overview

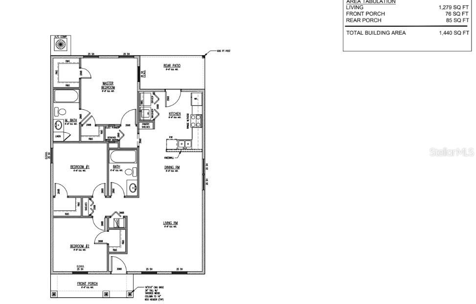
Under Construction. Brand-new 3 bedroom, 2 bath home in the heart of Tampa’s fast-growing VM Ybor district. This 1,279 sq ft home features an open living and dining area, a modern kitchen, a private primary suite, and two well-sized secondary bedrooms. Enjoy a covered front porch, rear patio, energy-efficient construction, and no HOA or CDD fees.

Located minutes from Ybor City, Downtown Tampa, Water Street, Channelside, Armature Works, and major highways, this home offers unbeatable access to Tampa’s best dining, entertainment, and commuter routes. A great opportunity for homeowners or investors looking for new construction in a rapidly developing area.

Driving directions : Take Nebraska Avenue north, turn right onto E Columbus Drive, then turn left onto N 10th Street. Turn right onto E 26th Avenue; the home will be on your right.

Property Features

Rooms Dimension Description
Kitchen First level , Luxury Vinyl
Dining Room First level , Luxury Vinyl
Living Room First level , Luxury Vinyl
Primary Bedroom First level , Luxury Vinyl , En Suite Bathroom
Bedroom 1 First level , Luxury Vinyl
Bedroom 2 First level , Luxury Vinyl

Interior Features

  • Ceiling Fans(s)
  • Open Floorplan

Appliances

  • Dishwasher
  • Range
  • Refrigerator

Heating

  • Central

Laundry features

  • Laundry Closet

Air Conditioning

  • Central Air

Floor Covering

  • Luxury Vinyl

Utilities

  • Public

Exterior features

  • None

Construction Materials

  • HardiPlank Type

Road Surface Type

  • Paved
  • Unimproved

Property Condition

  • Under Construction

Roof

  • Shingle

Foundation

  • Block
  • Slab

Listing information courtesy of DJ DELGADO MANAGEMENT GROUP

All listing information is deemed reliable but not guaranteed and should be independently verified through personal inspection by appropriate professionals. Listings displayed on this website may be subject to prior sale or removal from sale; availability of any listing should always be independently verified.
Listing information is provided for consumer personal, non-commercial use, solely to identify potential properties for potential purchase; all other use is strictly prohibited and may violate relevant federal and state law.
Listing data comes from My Florida Regional MLS.